Structural Drawings : Engineering Strength and Stability

Structural Drawings : Engineering Strength and Stability

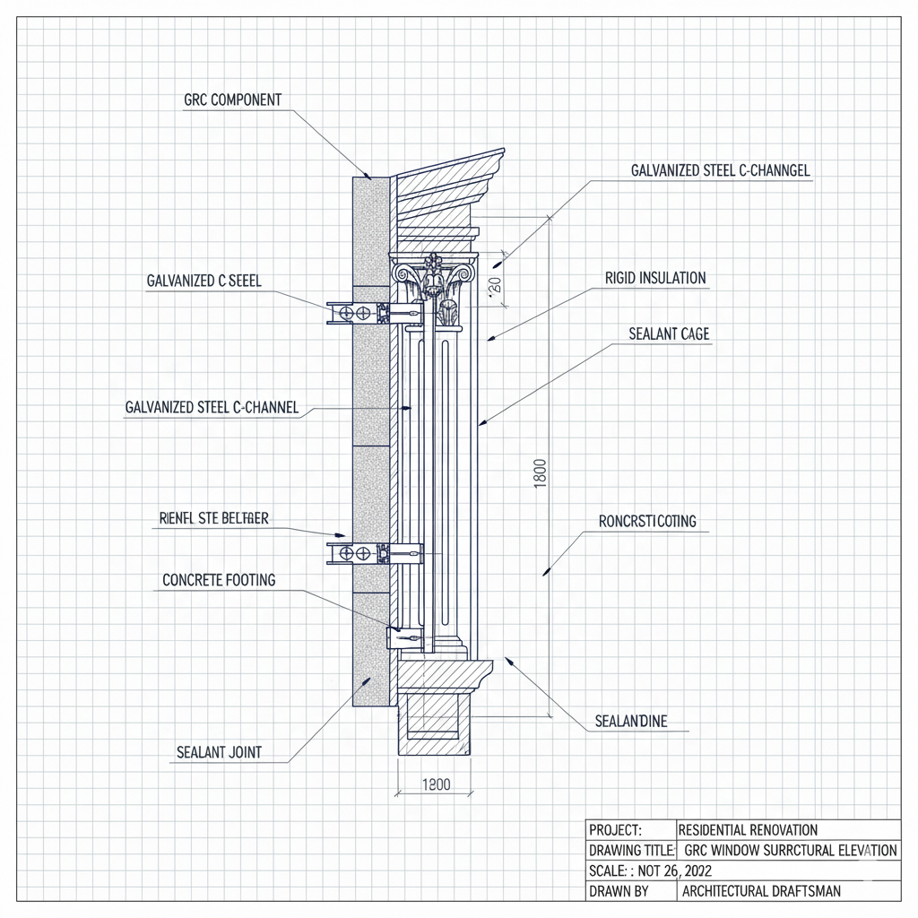
At Blion, precision meets performance in our structural drawing stage. Our engineering team creates detailed steel fabrication drawings that form the backbone of every FRP and GRC installation, ensuring each element is securely supported.

Every factor from structural loads and wind pressures to fixing and connection details is carefully analyzed to achieve a flawless and safe structure.

These drawings transform design intent into engineering certainty, ensuring that your architectural vision stands strong, stable, and built to last.

Scroll to Top